Eladó családi ház Siófok 89 250 000 Ft

Leírás

Siófok nyugodt részén, mégis elérhető közelségben a központtól, hagyományos
építési alapokon fekvő modern lakóépületeket kínálunk eladásra.

Az 5 db 108 m2-es önálló családi ház 2400 m2-es telken épül, kiemelkedő minőségű
lakóingatlanból álló lakópark részei. Az ingatlanhoz saját, körbekerített kert tartozik,
ami az 5 db családi háznál eltérő méretű, 153-191 m2.

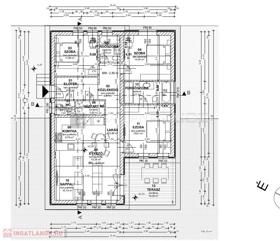
A teraszos házakban korszerűen kialakított kertkapcsolatos tágas nappali, étkező,
konyha, 3 teljes értékű hálószoba, 2 fürdőszoba, 1 vendég WC és háztartási helység
kerül kialakításra. Az épületek 1 szintesek, nem alá pincézettek. Az épület szeglemezes tetővel készül, antracit színű betoncseréppel.

A házak korszerű, minden igényt kielégítő hőszivattyús, minden helység
padlófűtéssel és a szociális helységeken keresztül, átszellőztetéssel kombinálva
rendkívül költséghatékony fenntartást biztosít, jelentős megtakarítást eredményezve
a rezsi költségekben. A hálószobákban, nappaliban klíma kerül beépítésre központi
kültéri egységgel. A hálószobák, illetve a nappali hőmérséklete az egyéni igények
szerint külön termosztáttal állítható.

Az energiaszolgáltatás H tarifás áramszolgáltatással történik, és a napelem
előkészítésnek köszönhetően lehetőség nyílik további költségmegtakarításra.

A házak több zónás riasztó rendszerrel lesznek felszerelve. Okos otthon
kialakításunknak köszönhetően a hűtés-fűtés, a riasztó rendszer és a kamera
rendszer is telefonról irányítható.

A nyitott gépkocsi parkoló, -mely a vételár részét képezi - a ház mellett található, itt a
későbbiekben igény szerint garázs is építhető.

A saját, intim kertben igény szerint a teraszok mellett gyermekeknek játszótér, grillező vagy akár medence is kialakítható.

Családi ház részletei

Ár: 89 250 000 Ft
Méret: 108 négyzetméter
Azonosító: 11264264
Irodai azonosító: IP7634
Telek: 151 négyzetméter
Ingatlan állapota: Kérdezzen rá a hirdetőtől »
Jelleg: családi ház
Építőanyag: Tégla
Fűtés jellege: Hőszivattyú
Szintek száma: Földszintes
Egész szobák: 4
Nappalik: 1